Es werden 169 Projekte angezeigt.
Dorftreff "Gehrda"
Wir für hier/ Bürger*Innen aktiv/ gemeinsam sind wir stark/ das geht uns alle an/ hallo Nachbar
Ort: Bersenbrück
In der SG BSB ( Gemeinde Gehrde) gibt es jetzt einen Bürgertreffpunkt. "Gerhda" ist ein Treffpunkt geworden für alle Personen, die einsam sind und Kontakt oder Rat suchen. Ein wunderschönes altes Gebäude wurde mitten im Zentrum von Gehrde angemietet. Die Ausgestaltung der Räumlichkeiten haben wir zum größten Teil in Eigenleistung erbracht. Küche und Aufenthaltsraum wurden mit viel ehrenamtlichem Engagement hergerichtet. Notwendige Anschaffungen wurden getätigt. Mittlerweile haben sich schon...
Quartiersbrücken in Emden (2018)
Bündelung und Koordination gebietsbezogener und lebensweltorientierter Arbeitsansätze in Emden
Ort: Emden
Die Stadt Emden hat mit Hilfe der Förderung aus dem Programm Gemeinwesenarbeit und Quartiersmanagement die Neuorganisation der GWA/QM auf mehreren Ebenen begonnen und stellt sich zwei wesentlichen übergeordneten und längerfristigen Herausforderungen: Innerhalb der Verwaltung sollen die verschiedenen Zuständigkeiten und Formen der Unterstützung von Gebieten mit besonderen Integrationsanforderungen und der hier lebenden Menschen systematisch zusammengeführt werden. Durch die organisatorische...
Nachbarschaftsfabrik Neuland - ein soziokulturelles Zentrum für Winsen (2018)
Aufbau einer GWA als methodenintegrierendes Arbeitsprinzip, um in einem heterogenen Projektgebiet Nachbarschaftsstrukturen zu entwickeln und darüber Zugänge zu niedrigschwelligen sozialen Hilfen zu erleichtern.
Ort: Winsen
Im Gebiet der Grundschule "Alte Stadtschule", leben ca. 4200 Menschen aus 64 Nationen. Ca. 50% haben einen Migrationshintergrund. Zusätzlich ziehen geflüchtete Familien und junge Familien mit Migrationshintergrund in die Bereiche der Mehrfamilienhausriegel. Parallel dazu leben vermehrt ältere Alleinstehende in dem Gebiet - ca. 28 % der Bewohner sind über 60. Fachkreise berichten von einer Zunahme von nicht konformen Rechtsauffassungen in bestimmten Familienstrukturen. Ein Hochhausbereich wurde...
Zukunftszentrum- von und für Menschen gemacht! 2.0 (2018)
Ausbau und Erweiterung des Zukunftszentrums und der stadtteilbezogenen Projekte in den jeweiligen Stadtteilgebieten
Ort: Dannenberg
Das Zukunftszentrum ist die erste Anlaufstelle und Begegnungsstätte mit verschiedenen Begegnung- Hilfs- und Kulturprojekten. Das Besondere des Zukunftszentrums ist die Vielfalt der Angebote, womit jeder im Stadtteil angesprochen wird. Wir haben verschiedene Förder- und Hilfsangebote, aber auch verschiedene Begegnungsangebote zwischen unterschiedlichen gesellschaftlichen Gruppen initiiert und durchgeführt. Die ersten Schritte zum Aufbau der Förderung von Selbsthilfe und Selbständigkeit wurden...
Dissen aktiv - in aller Vielfalt (2018)
Ressourcen der kulturellen, sozialen, ethnischen Vielfalt in Dissen sichtbar und wirksam machen
Ort: Dissen
„Dissen aktiv – in aller Vielfalt“ verfolgt die Ansätze von Diversität, Chancengleichheit und Empowerment. Im Vordergrund steht die Förderung des bürgerschaftlichen Engagements von Menschen mit Migrationshintergrund. Das derzeit laufende Erstprojekt „Dissen aktiv“ zeigt bereits: MigrantInnen sind in der Gemeinwesenarbeit und damit in der zivilgesellschaftlichen Gestaltung des Lebensraumes wenig sichtbar. Dass die Gemeinwesenarbeit ihnen eine Handlungsplattform und ein Sprachrohr sein kann, mit...
Bewegte Leben - Biografien von Frauen aus aller Welt und mitten unter uns: Schreibwerkstatt, Lesecafe und Ausstellung (2018)
Interkulturelle Biografiearbeit: Schreibwerkstatt, Lesecafe und Ausstellung
Ort: Lüneburg
Der Lüneburger Stadtteil Kaltenmoor kämpft seit Jahren mit einem Imageproblem und wird von Außenstehenden überwiegend als Fremdkörper und Problembezirk wahrgenommen. Seine Sozialstruktur ist interkulturell geprägt, der Anteil von wenig finanzkräftigen Menschen ist hoch. Das (Freizeit)Leben findet meist in den eigenen vier Wänden statt, was zu einer verstärkten Separierung der verschiedenen soziokulturellen Gruppen/ Familien führt. Intensiverer Kontakt über kulturelle Grenzen hinweg ist eher die...
Frauen(t)räume - Räume für Frauen (2018)
Frauen-Begegnungszentrum als Integrationsprojekt in Vorwerk
Ort: Celle
Im Quartier Talweg-Himmelsberg-Nordfeld im Celler Stadtteil Vorwerk leben ca. 60 Flüchtlingsfrauen mit ihren Familien. Nach anfänglich positiver Stimmung gegenüber den neuen Bewohner/innen, spiegelt die Atmosphäre im Quartier derzeit die im Bundesgebiet wieder - es gibt Vorbehalte, Ängste, Misstrauen, Neid. 2018 eröffnete eine Steuerungsgruppe aus Akteurinnen des Quartiers, koordiniert durch die Zuwanderungsagentur, die "Frauen(t)räume - Räume für Frauen" zur Begegnung, Bildung und Integration...
Haus der Begegnung Bad Lauterberg (2018)
Raum und Räume für eine nachhaltige Gemeinwesenarbeit schaffen
Ort: Bad Lauterberg
Trotz provisorischer räumlicher Situation wurde begonnen die Strukturen der Gemeinwesenarbeit in der Kommune Bad Lauterberg auf- und auszubauen. In den wenigen Monaten seit Projektbeginn wurde das Netzwerk gestärkt, es wurden wie geplant auch vermehrt Alteingesessene erreicht und das Personal fortlaufend weiterentwickelt und im Themenfeld qualifiziert. Das Ursprungsproblem und Ausgangspunkt für das Projekt war, dass adäquate Räumlichkeiten für ein Haus der Begegnung fehlen. Nach intensiver aber...
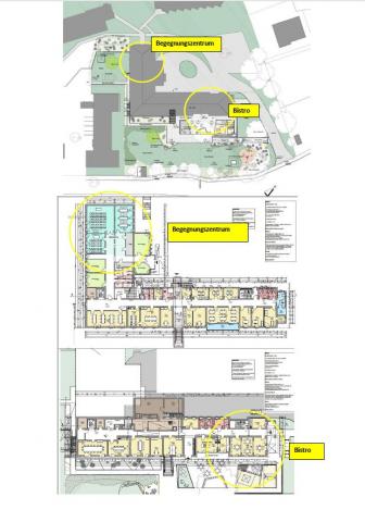
Haus der Nationen - Neumündener Begegnungszentrum (2019)
Vielfalt in Neumünden leben
Ort: Hannoversch Münden
Im Stadtteil Neumünden (Stadt Hann. Münden) wird ein Prozess des friedlichen Zusammenlebens unter multiethnischen Anwohnern entwickelt. Das soll mit interaktiver Entwicklung von Angeboten für und mit Anwohnern erreicht werden. Für diese Vielfalt in Neumünden wurde ein Begegnungszentrum mit einem Projektkümmerer errichtet. Der Landkreis Göttingen als Eigentümer hat die Baumaßnahmen für das ehem. Vereinskrankenhaus, in dem das Begegnungszentrum entsteht, bereits weitestgehend abgeschlossen. Mit...
Senior*innen-Aktiv-Zentrum Sahlkamp (2018)
Niedrigschwellige Anlaufstelle für Senior*innen mit und ohne Zuwanderungsgeschichte
Ort: Hannover
Die Sparkasse geht - Projekt „Senior*innen-Aktiv-Zentrum Sahlkamp“ kommt! Die Sparkassen-Filiale im hannoverschen Stadtteil Sahlkamp wird zu Ende August 2018 ihr gesamtes Personal abziehen, es verbleibt lediglich eine Automaten-Schalterhalle. Durch diese - für die Bewohner*innen durchaus mit Nachteilen verbundene, aber durch politische Einflussnahme letztlich nicht zu verhindern gewesene - Veränderung ergeben sich allerdings auch neue räumliche Möglichkeiten für die Quartiersentwicklung. Lange...
Koordinierung und Entwicklung der Gemeinwesenarbeit in Visselhövede (2018)
Zusammenführung und Optimierung der Gemeinwesenarbeit, Unterstützung der ehrenamtl. Arbeit, sowie Schaffung eines Netzwerkes für Beratung und Vermittlung
Ort: Visselhövede
In Visselhövede leben ca. 10.000 Einwohner. Davon ca. 5.200 i. d. Kernstadt. Hier ist die höchste Arbeitslosigkeit im LK Rotenburg u. ein hoher Anteil an Jugendlichen ohne Schul-/ Berufsabschluss. Obwohl ländlich geprägt, leben mehrere größere Gruppen von Zuwanderern in eigenen Gebieten/Strukturen. In diese Situation wurden ca. 120 Geflüchtete neu aufgenommen. Die Koordinierungs- /Integrationsarbeit wurde fast ausschließlich durch den ehrenamtlichen Präventionsrat geleistet, stieß aber...
Gemeinsam Lamspringe (2018)
Gemeinsamen Lebensraum gemeinsam gestalten
Ort: Lamspringe
Seit Herbst 2017 ist das Projekt "Gemeinsam Lamspringe" in der Gemeinde im Vorharz gestartet. Zuerst musste eine passende Räumlichkeit gefunden werden, die als Anlaufstelle dient und Platz für Beratungs- und Begegnungsangebote bietet. Seit der Einweihung im Dezember finden dort regelmäßig Sprechstunden der Migrations-, Jugendamts- und Rentenberatung statt. Außerdem bieten sowohl die hauptamtlich Mitarbeitenden als auch Ehrenamtliche Veranstaltungen und Kurse an. Zusätzlich zu den konkreten...
Gemeinsam Lamspringe
Gemeinsam Nachbarschaft entwickeln.
Ort: Lamspringe
Das Projekt unterstützt bürgerschaftliches Engagement und Vernetzung verschiedener Initiativen, um dem demografischen Wandel entgegenzuwirken. Ziel ist es, dass alle Bewohner*innen sich inkludiert fühlen und gleichberechtigt an allen Bereichen des Lebens teilhaben können. Seit 2017 gibt es eine Anlaufstelle namens "Treffpunkt", in der verschiedene Beratungs- und Bildungsangebote sowie Veranstaltungen stattfinden. Die Projektmitarbeiterinnen führen diese zum Teil selbst durch und koordinieren,...
ONE WORLD Ostheide e.V. / Stätte des interkulturellen Dialoges und Integration auf Augenhöhe
Kulturzentrum, das Menschen mit Migrationshintergrund Forum, betriebliche Integrationsmöglichkeiten und Ausbildungsperspektiven gibt sowie interkulturellen Dialog und Verbreiterung des kulturellen Angebotes im ländlichen Gemeinwesen fördert. Eröffnet 2018
Ort: Reinstorf
Viele Mitglieder unseres 2017 gegründeten Vereins sind seit 6 Jahren in der Geflüchteten-Arbeit tätig - z.B. in den Samtgemeinden Ostheide (kirchliche Arbeit) und Ilmenau (im Rahmen der mit dem Hans Herrmann Stelljes-Preis ausgezeichneten Initiative "Benefiz Musikmeile Barnstedt"). In dieser Zeit entstanden erste Netzwerkansätze. Einzelne Kontakte in das einheimischen Gemeinwesen konnten z.B. im Rahmen von Sportvereinen, Gemeinde oder punktuellen Veranstaltungen hergestellt werde. Jedoch konnte...
Ecovillage-Hannover; ein selbstorganisiertes Modellstadtquartier mit kostengünstigen Wohnungen
Gemeinsam planen - ökologisch und kostengünstig in einer Gemeinschaft wohnen
Ort: Hannover
Geplant ist ein experimentelles Wohn- und Lebensquartier für bis zu ca. 1.000 Menschen in Genossenschaftsform. Umgesetzt werden soll die Vision eines nachhaltigen Quartiers in einer Großstadt mit einem hohen sozialen Standard. Dabei sollen die Reduktion des Ressourcenverbrauchs aufgrund einer selbstbegrenzten Lebensweise („Suffizienz“) und gemeinschaftliche Lebensformen im Mittelpunkt stehen. Neben den Wohnformen kommen bei dem Projekt auch anderen sozialen oder ökonomischen Aspekten eine hohe...
Leben im Meer - Inselgesellschaften in touristisch geprägten Lebensräumen (Dachprojekt)
Mikrokosmos Insel - Aufbau von Netzwerken und Kooperationsstrukturen für kollektives Empowerment
Ort: Oldenburg
Die Bewohner der ostfriesischen Inseln wohnen dort, wo viele Menschen gerne Urlaub machen. Davon leben sie, das ist die Haupteinnahmequelle der Insulaner, fast zu 100%. Der Tourismus wird aber auch immer mehr zur Belastung. Die work-life-balance gerät zunehmend ins Ungleichgewicht. Wohnungen werden nicht nur mehr sehr teuer, sie sind auch noch knapp. Alt werden auf den Inseln ist auch nicht mehr so selbstverständlich, wie noch vor 20 Jahren. Es gibt nicht genügend Pflege und ärztliche...
Leben im Meer - Aktiv für die Insel Spiekeroog (Teilprojekt 1)
Mikrokosmos Spiekeroog - Aufbau eines nachhaltigen Gemeinwesens mit dem Themenschwerpunkt "zukunftsfähige Mobilität sowie insulare Ver- und Entsorgung"
Ort: Spiekeroog
Die Insel Spiekeroog wird auch die grüne Insel genannt. Mit seinen 844 Einwohnern zählt sie zu den kleineren Inseln, in Bezug auf die Einwohnerzahl, wie auch in Bezug auf den Anteil an ausländischen Mitbürgern (rund 13% gegenüber Juist mit rund 28%). Die Siedlungsstrukturen und der Baubestand sind intakt, der Gesamteindruck idyllisch. Dennoch hat auch Spiekeroog mit der Abwanderung der Jugend, der zunehmenden Belastung durch die steigende Zahl an Gästen und Übernachtungen zu kämpfen. Auf der...
Leben im Meer - Lebendige Inselgemeinschaft Juist (Teilprojekt 2)
Mikrokosmos Juist - Stärkung der Inselgemeinschaft durch Quartiersmanagement zur Sicherung der Daseinsvorsorge
Ort: Juist
Die Insel Juist wird auch "Töwerland", also Zauberland, genannt. Mit 1.593 Einwohnerinnen und Einwohnern zählt sie zu den kleineren Inseln. Die Juister Bevölkerung hat zunehmend mit der Belastung durch die steigende Anzahl der Gäste zu tun (in 2017 wurden knapp 1 Mio. Übernachtungen registriert), welche sich zwar positiv auf die wirtschaftlich Lage, aber negativ auf die Work-Life-Balance und das Gemeindeleben bzw. die Inselgemeinschaft auswirkt. Der Anteil der ausländischen Mitbürgerinnen und...
Leben im Meer - Jugend mit Zukunft auf Wangerooge (Teilprojekt 3)
Mikrokosmos Wangerooge - Qualifizierte Jugendarbeit und Verbesserung der Ausbildungsmöglichkeiten
Ort: Wangerooge
Wangerooge ist die östlichste der Ostfriesischen Inseln und mit 1.330 Einwohnern auch eine der kleineren. Wangerooge ist mit 127.000 Gästen und knapp 1 Mio. Übernachtungen jährlich ein touristisches Schwergewicht und einer der Tourismus Hotspots in Niedersachsen. Das heißt im Jahresrhythmus: In der Saison sind alle Betriebe der Insel vollständig ausgelastet und die Einwohnerzahl der Insel steigt auf Großstadtniveau an. Außerhalb der Saison zieht sich die Einwohnerzahl wieder auf Dorfniveau...
Gemeinwesen "Goosmanns Tannen"
Aufbau eines Gemeinwesenzentrums unter Aktivierung der Bewohnerschaft zur Aufwertung der Lebensqualität (Bildung, Qualität der Umwelt, soziale Beziehungen, Beteiligung, Mobilität, Kultur und Freizeit) im Wohnquartier
Ort: Lingen (Ems)
Das Wohnquartier „Goosmanns Tannen" liegt am nördlichen Stadtrand der Mittelstadt Lingen (Ems), in welchem ca. 1500 Bewohner*innen leben. Trotz Stadtrandlage mit hohem Grünflächenanteil, ist die Qualität der Infrastruktur als mangelhaft zu bezeichnen, was dazu führt, dass die bereits begrenzte Teilhabe der Anwohner*innen aufgrund sozialer und wirtschaftlicher Benachteiligung noch weiter eingeschränkt ist. In Goosmanns Tannen leben überdurchschnittlich viele Menschen mit Migrationshintergrund,...
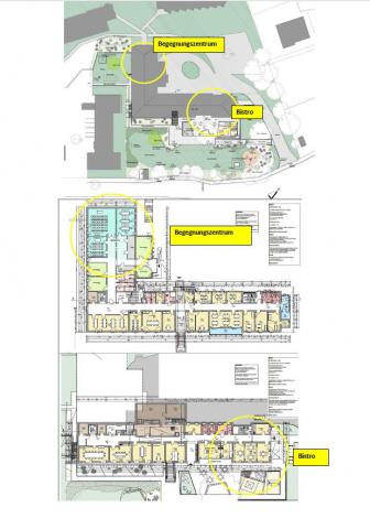
Haus der Nationen - Neumündener Begegnungszentrum (2019)
Vielfalt in Neumünden leben
Ort: Hannoversch Münden
Im Stadtteil Neumünden wird ein Prozess des friedl. Zusammenlebens unter multiethn. Anwohnern implementiert. Für diese Vielfalt wurde ein Begegnungszentrum (BZ) mit einer Projektkümmerin errichtet. Der LK Göttingen als Eigentümer hat die Baumaßnahmen für die Räumlichkeiten im Haus der Nationen im Stadtteil Neumünden, in denen das BZ entsteht, bereits abgeschlossen. Im ersten Projektjahr wurden bereits in einem interaktiven Beteiligungsprozess Angebote für und mit Anwohnern etabliert. Nun werden...
„Finde die Glaswände!“ – Gemeinsam Durchgänge zur guten Nachbarschaft schaffen
Der Landkreis Hameln-Pyrmont will mit dem zu fördernden Projekt „Finde die Glaswände!“ in seinen acht Kommunen ehrenamtliche Potentiale wecken, Trennungen identifizieren und durch gute Ideen ganz neue Durchgänge schaffen.
Ort: Hameln
Unter dem Motto: „Finde die Glaswände!“ sollen die Teilnehmer (aus kommunalen, gemeinnützigen, privaten und ehrenamtlichen Strukturen) aktiviert werden zu erforschen, welche unsichtbaren Wände eine gute Nachbarschaft verhindern, was uns trennt und Beziehungen hemmt. Im zweiten Schritt sollen neue Ideen entwickelt werden, um die „Glaswände zu durchbrechen“. Ziel der zukünftigen GWA soll die Zusammenführung sozialer, demografischer u. ethnischer Potenziale sein. Es entsteht ein Mehrwert für die...
NaDi - NachbarschaftsDialog
Stärkung des sozialen Zusammenhaltes durch Begegnung und Partizipation
Ort: Belm
Das Projekt "NaDi – NachbarschaftsDialog“ zielt darauf ab, den sozialen Zusammenhalt im Projektgebiet zu stärken und Möglichkeiten für das Zusammenwachsen als soziale Gemeinschaft zu bieten. NaDi ist dabei nicht nur Akronym, sondern auch das arabische Wort für "Club". Es wird im Alltag als Begriff für Orte der Begegnung verwendet. Auf diesen Orten liegt der Fokus des Projektes. Das Projektgebiet umfasst das ehemalige Sanierungsgebiet "Soziale Stadt", die damals geschaffenen Strukturen sollen...
TanteEmma - ein Ladengeschäft mit Begegnungs- und Beratungsort
TanteEmma (TE) - das Beste von Früher für Heute; Begegnungs- und Beratungsort; getragen von einer breiten Bewegung in Cuxhaven, mit der Zielsetzung eine Sozialgenossenschaft zu gründen
Ort: Cuxhaven
TanteEmma soll in der Innenstadt im Januar 2020 eröffnen. TE sieht in ersten Moment aus wie ein normales Ladengeschäft. In den Hinterräumen befinden sich aber auch Beratungsbüros und Versammlungsräume. Dadurch soll dies die neue Adresse des Freiwilligenzentrums werden und als "Ehrenamtsagentur" dienen. Zur Konzeption, Planung und Umsetzung soll ab 09/19 sich die Marktleiter*in in TZ kümmern. Für praktische Renovierungsarbeiten werden Ehrenamtliche Hand anlegen. Wenn der Betrieb in 01/20 anläuft...
Gemeinsam. Für dich. Vor Ort.
Gemeinsam. Für dich. Vor Ort.
Ort: Cuxhaven
Aus der ursprünglichen Idee, Migranten mit Ausstattung (Möbel, Hausrat..) der ersten eigenen Wohnung sowie bei der Renovierung zu helfen, wurde mehr: Es entstand die Idee, die Hilfe ALLEN Menschen zukommen zu lassen, die sich in einer Notsituation befinden. Unsere sehr praktischen Hilfsangebote stehen allen hilfsbedürftigen Menschen in der Stadtmitte Cuxhavens zur Verfügung, die sich auf Grund ihrer persönlichen Situation nicht selbst helfen können. Unserer hauptamtlicher Koordinator ist der...
- ‹ vorherige Seite
- 2 von 7
- nächste Seite ›






















